
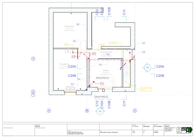
Mission de relevés de l’existant puis étude de synthèse des corps d’état architecturaux et technique pour la refonte complète des distributions plomberie et électricité dans cette maison existante élancée où de nombreuses sections existantes sont encore en plomb et où des travaux successifs ont entraîné des boucles, chicanes et détours à rationaliser.
